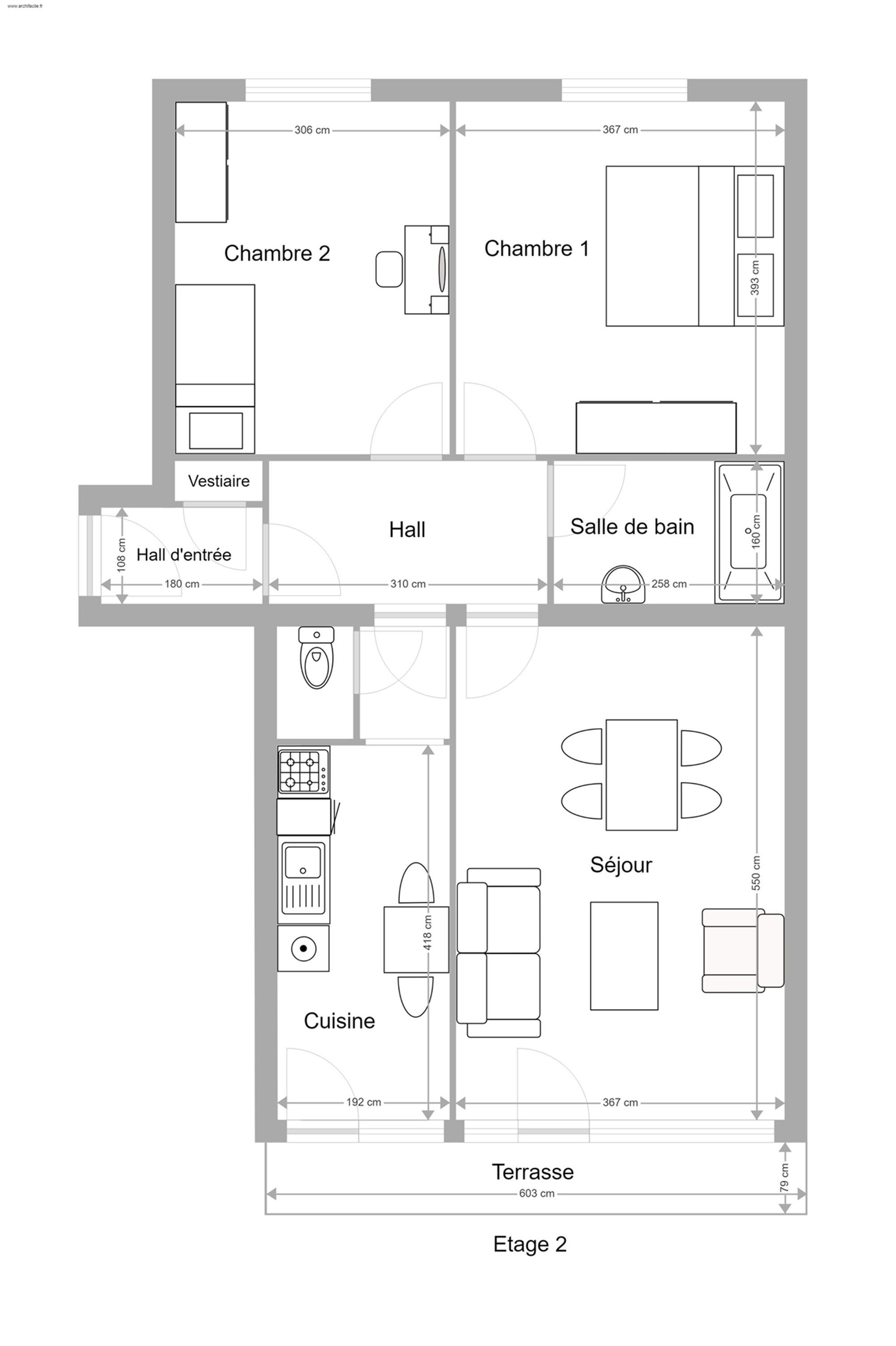
PASIMMO AGENCE 1%* vous présente au 2ème étage sur 4 d’une copropriété de taille moyenne cet agréable appartement 2 chambres agrémenté d’une TERRASSE orientée SUD et d’une cave de 7,50 m². La proximité de toutes facilités (transports en commun, commerces, écoles…), le très bon PEB (catégorie B), les volets à toutes les fenêtres (2013) sont des atouts supplémentaires pour le découvrir! A visiter sans tarder avec Alex PASQUIER au 0475/80.85.87 _____* Prix indicatif sous réserve d’acceptation du propriétaire *Honoraires d’agence à charge du vendeur * 1% HTVA soit 1,21´% TVAC avec un minimum de 2.500€ HTVA soit 3.025€ TVAC
