{SOUS OPTION – En attente de signature du compromis}
PASIMMO AGENCE 1%* vous présente cette jolie habitation 3 chambres avec cour et garage.
Ce bien est idéalement situé, dans une rue sans issue, à deux pas de toutes les commodités et des écoles, à quelques minutes seulement des grands axes (Basse Sambre, R3, E42) A quelques pas du futur Grand hôpital de Charleroi.
Au bout de la rue, un parc récréatif pour des moments de détente et un contact privilégié avec la nature.
Composition :
– Au rez-de-chaussée : hall d’entrée, wc, séjour très lumineux avec cuisine ouverte, buanderie et porte-fenêtre pour un accès à la jolie petite cour extérieure.
– Étage 1 : hall de nuit desservant 2 chambres et la salle de douche avec toilette, cabine de douche balnéo et luminothérapie et lavabo.
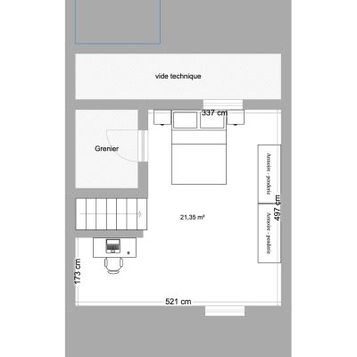
– Étage 2 : Grande chambre et petit grenier
Les atouts : Construction semi-récente (2008), Matériaux de qualité, structure hourdis béton, Chauffage central au Mazout (cuve 2500l), garage avec double porte (avant et arrière). Revenu cadastral = 675€
Excellentes performances énergétiques, PEB C.
A visiter sans tarder avec Loik Crabeck au 0491/91.59.63_____ “Prix indicatif sous réserve d’acceptation du vendeur” *Honoraires d’agence à charge du vendeur. * 1% HTVA soit 1,21´% TVAC avec un minimum de 2.500€ HTVA soit 3.025€ TVAC .




























