PASIMMO AGENCE 1 %* vous présente cette spacieuse maison de ville pleine de potentiel localisée à Jette, offrant une excellente opportunité pour les familles en quête d’espace et de confort.
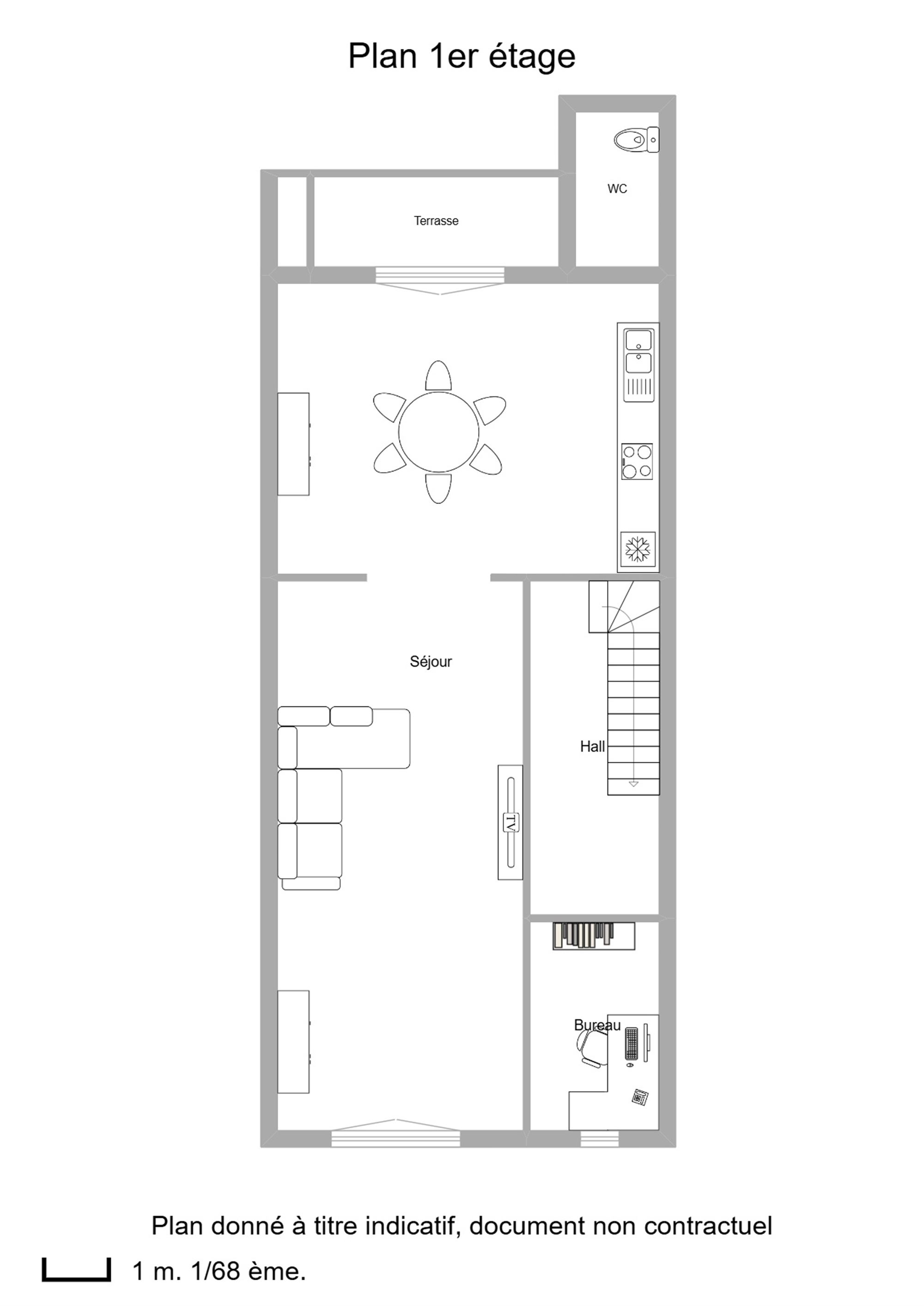
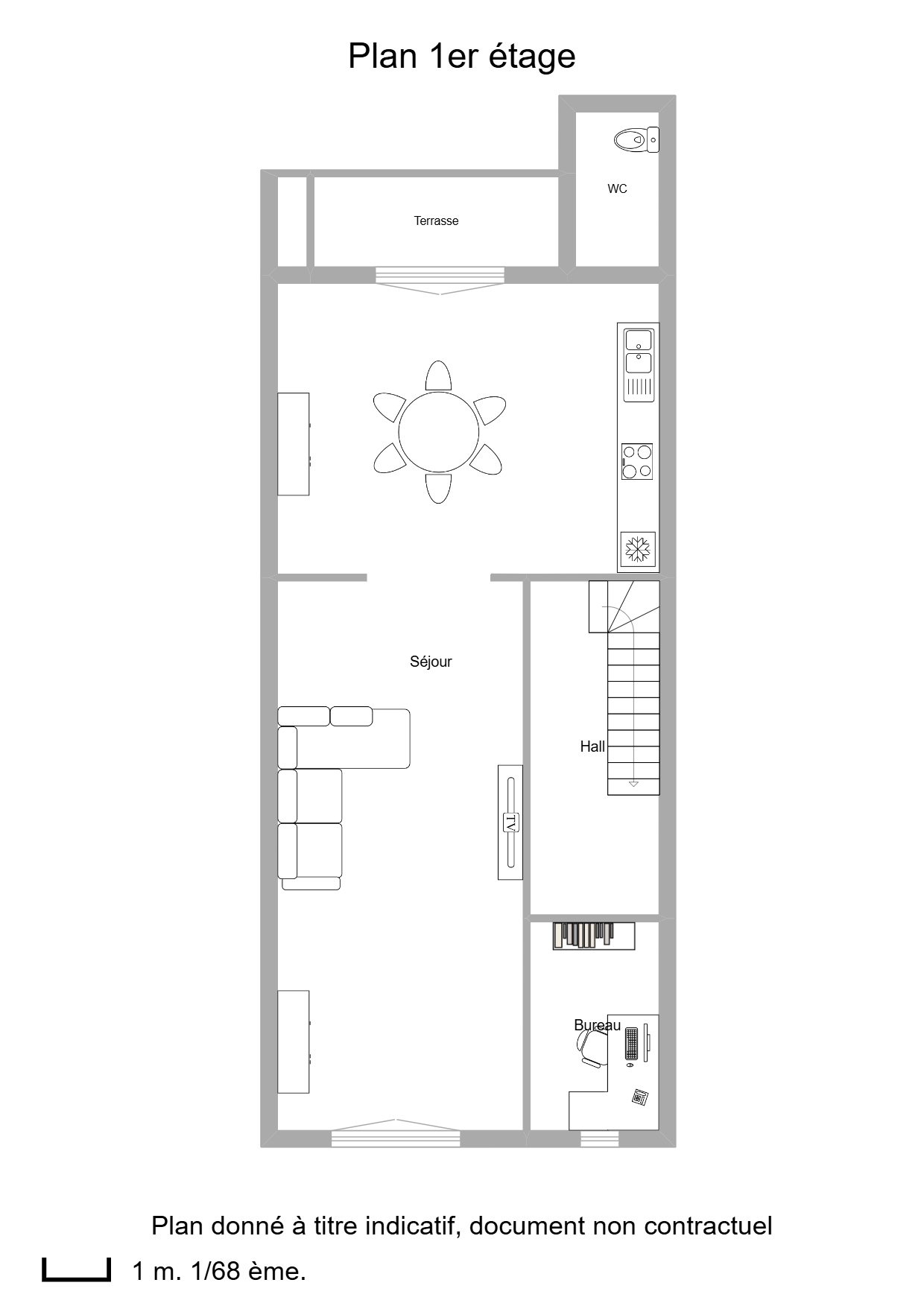
La maison comprend 5 chambres généreuses adaptables selon vos besoins. 3 salles de bains assurent le confort quotidien de tous les résidents. Les espaces de vie sont tout aussi confortables et pratiques. Le rez-de-chaussée se compose d’un hall d’entrée, d’un double garage, d’une grande buanderie, d’un WC, d’une terrasse et d’une cour orientés Sud-Est. Le 1er étage comprend les espaces de vie avec un séjour agrémenté d’une cuisine ouverte. Il se complète par un bureau, une terrasse et un WC séparé.
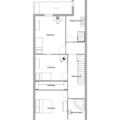
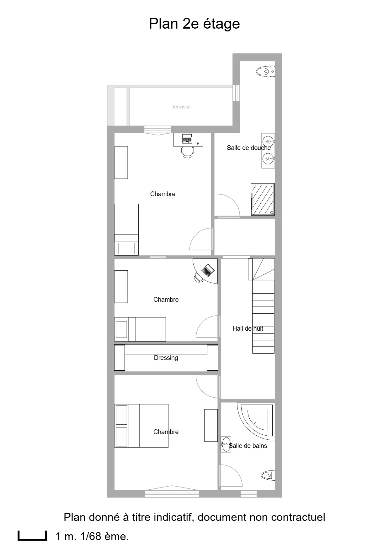
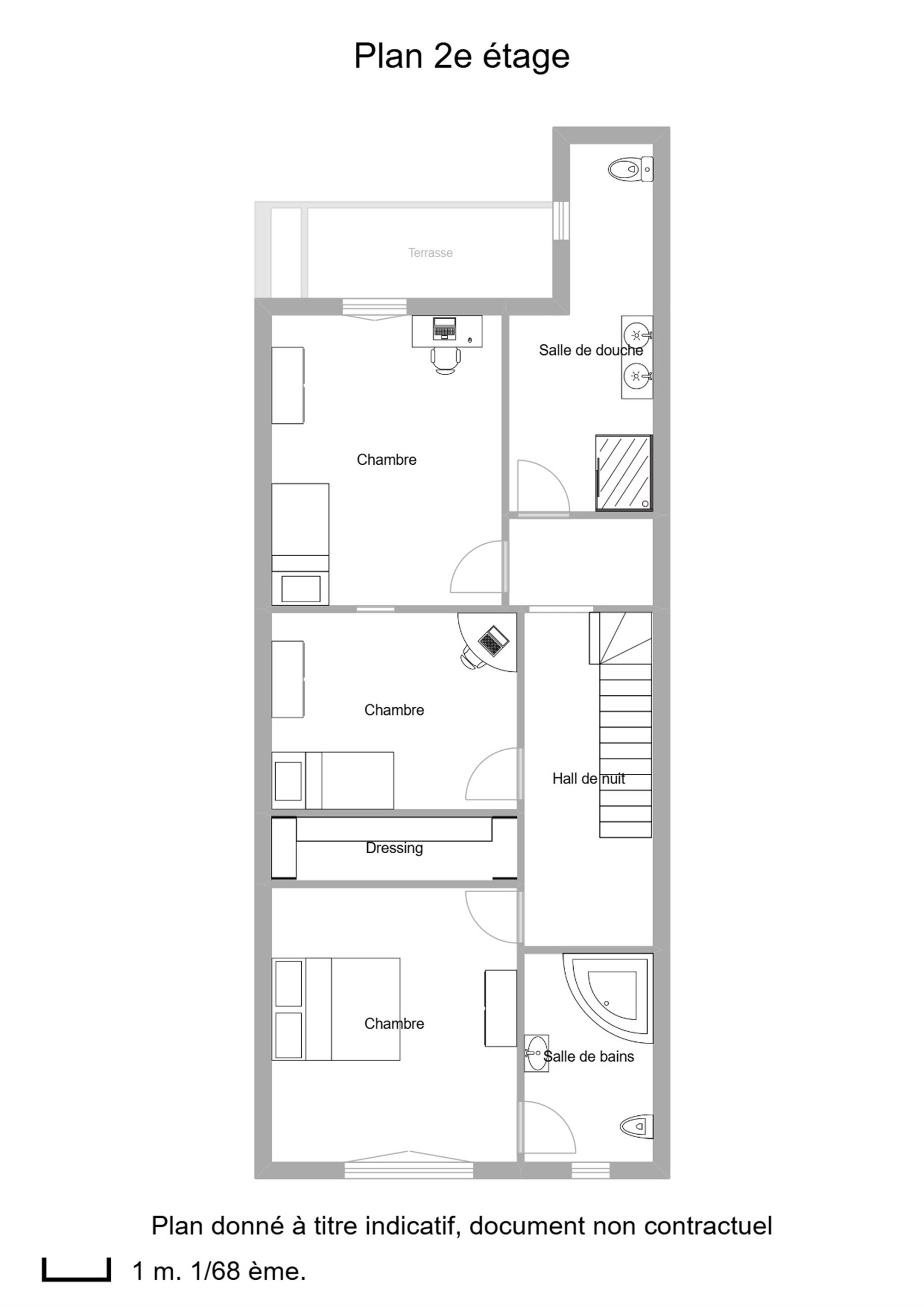
Vous trouverez ensuite les espaces nuit aux 2e et 3e étages avec tout d’abord 2 chambres, une salle de douche et une suite parentale (composée d’une chambre, un dressing et une salle de bains) puis 2 chambres et une salle de douche avec WC complètent ces espaces. Le dernier étage se compose quant à lui d’un grenier de rangement et des caves se trouvent au sous-sol, permettant de nombreux rangements.
Localisé dans un quartier dynamique de Jette, ce bien combine espace, charme bruxellois et potentiel d’investissement. Une visite s’impose pour apprécier pleinement tout ce qu’il a à offrir. Contactez sans tarder Aurélie Smit au 0496/92.42.45.
Prix indicatif sous réserve d’acceptation du vendeur. Honoraires à charge du vendeur. 1 % HTVA soit 1,21 % TVAC avec min 2.500 € HTVA soit 3.025 € TVAC.























