PASIMMO AGENCE 1% vous présente l’occasion unique d’acquérir la Ferme du Renard, un lieu événementiel exceptionnel situé à Noduwez, au cœur de la commune d’Orp-Jauche.
Cette ancienne ferme a été entièrement aménagée pour accueillir mariages, réceptions et événements en tous genres. Elle bénéficie d’une affectation urbanistique claire et d’une exploitation légale en tant que salle d’événements
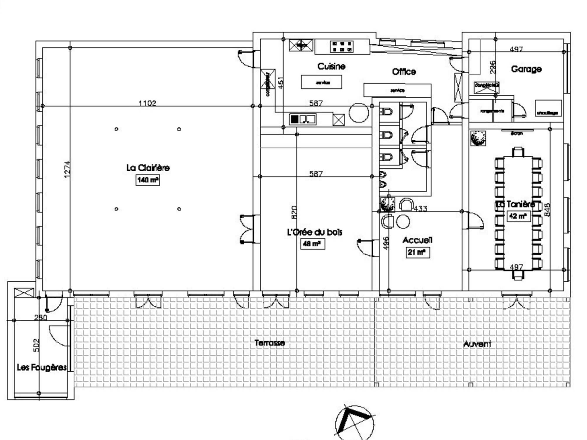
** Rez-de-chaussée : une succession de vastes espaces professionnels pouvant être exploités ensemble ou séparément. Un hall d’accueil spacieux dessert les différentes zones : cuisine professionnelle, blocs sanitaires, salle principale avant et salle latérale
** Premier étage : Une magnifique surface de 350m² à aménager. Idéal pour, par exemple, y aménager un gite et augmenter le rendement.
Des réservations sont déjà actées pour les années 2026 et 2027, garantissant une continuité d’activité pour le futur acquéreur
_ Reconnu officiellement comme salle de fêtes ;
_ Superficie totale d’environ 350 m² au sol ;
_ La capacité d’accueil est de 150 personnes assises
_ Excellent rendement locatif ;
_ Parking privatif ;
_ Dans un cadre rural tout en étant proche des grands axes et des facilités
Adresse : 10 Rue Pierre Renard
1350 Noduwez
À visiter sans tarder avec Loik Crabeck au 0491/91.59.63 _____ “Prix indicatif sous réserve d’acceptation des propriétaires” *Honoraires d’agence à charge du vendeur. * 1% HTVA soit 1,21´% TVAC avec un minimum de 2.500€ HTVA soit 3.025€ TVAC.































