{OPTION – En attente de signature de compromis}
PASIMMO AGENCE 1%* vous présente cette maison 4 façades à fort potentiel, avec hangar, située à Grand-Leez (Gembloux).
Un projet rare vendu en gros œuvre fermé, érigé sur une parcelle de 8 ares 88.
**Le rez-de-chaussée est pensé pour accueillir un séjour lumineux de près de 31 m², une cuisine spacieuse, une buanderie, et un hall central.
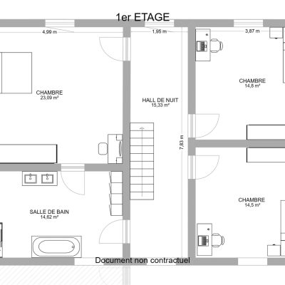
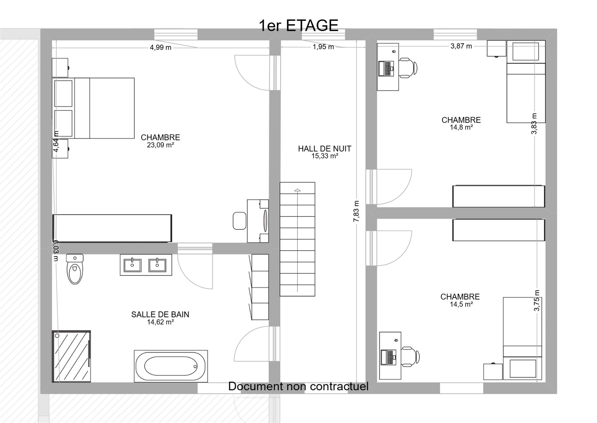
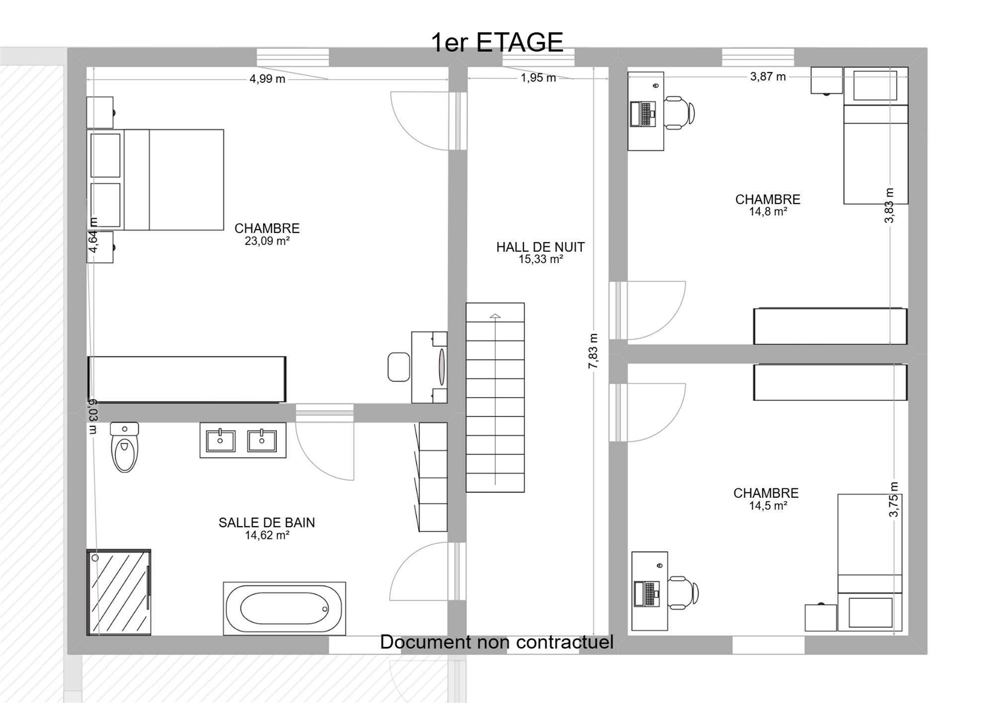
**À l’étage : trois espaces de chambres, dont une belle suite parentale avec possibilité de mezzanine, et une future salle de bain.
**Un grenier et 50 m² de caves complètent le tout.
Les extérieurs offrent un énorme potentiel de stockage ou d’activité :
– Hangar de 92 m² – Atelier de 13,8 m² – Garage de 29 m²
Le bien dispose d’une citerne d’eau de pluie de plus de 20.000 litres et de canalisations déjà en ordre.
Le prix affiché ne comprend pas les portes de garage, Velux, isolation ni les ardoises, mais ces éléments sont disponibles et peuvent faire partie de la négociation.
Un bien rare, idéal pour un amateur de rénovation ou un investisseur à la recherche d’un beau projet.
À visiter sans tarder avec Loik Crabeck au 0491/91.59.63 _____ “Prix indicatif sous réserve d’acceptation” *Honoraires d’agence à charge du vendeur. * 1% HTVA soit 1,21´% TVAC avec un minimum de 2.500€ HTVA soit 3.025€ TVAC.



















