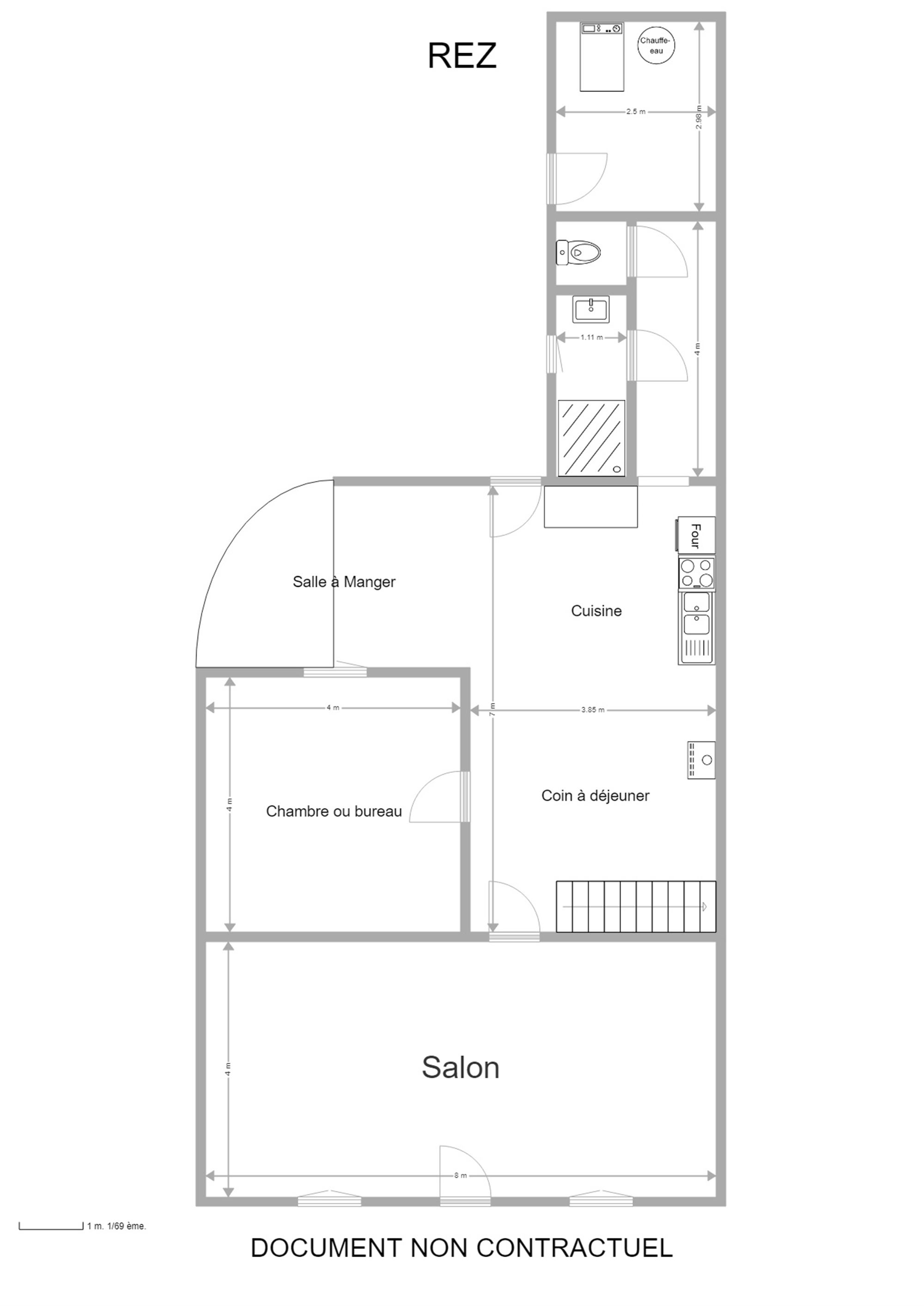
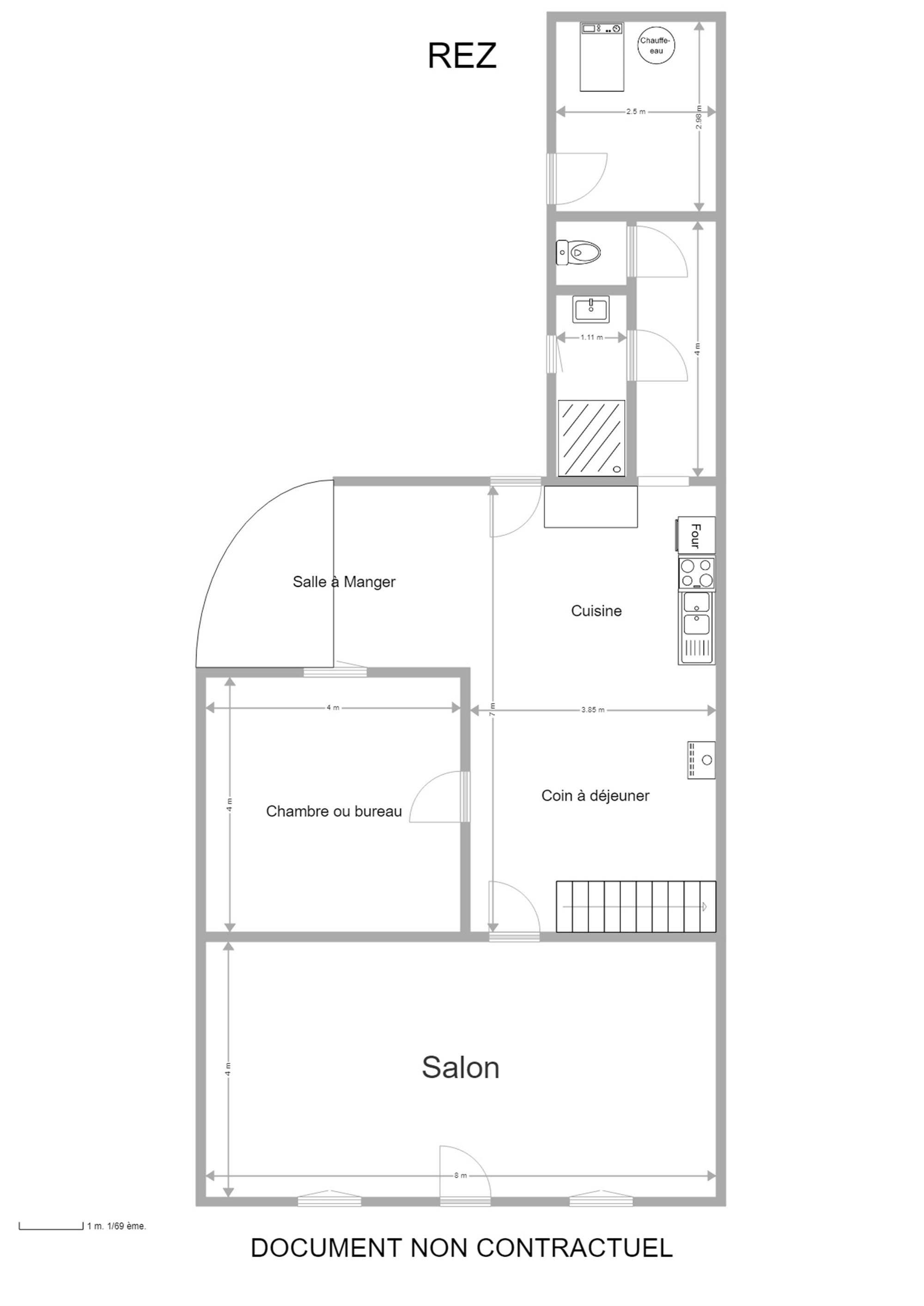
PASIMMO AGENCE 1% vous présente cette charmante maison villageoise dans une rue en cul de sac, offrant un espace de vie paisible et spacieux. S’étendant sur 175m² de surface habitable, cette propriété présente un potentiel exceptionnel alliant charme rustique et modernité.
Son extérieur en briques séduisantes évoque une ambiance classique, tandis que l’intérieur spacieux bénéficie d’une belle luminosité naturelle. La cuisine ouverte sur la salle à manger crée un espace convivial idéal pour les réceptions. .
Bien que la maison soit actuellement configurée avec une chambre, l’aménagement de l’étage pourrait transformer cet espace en plusieurs chambres ou bureaux, répondant ainsi aux besoins d’une famille en pleine croissance.
Le terrain de 955m² constitue un véritable atout, offrant des possibilités variées d’aménagement paysager ou de jardinage, et garantissant une intimité optimale. Les deux garages spacieux sont parfaits pour accueillir plusieurs véhicules ou servir d’atelier.
Avec une situation avantageuse à proximité des commodités locales tout en étant entourée par la tranquillité, cette maison représente une opportunité rare pour ceux en quête d’un projet d’aménagement personnel. Une visite s’impose pour découvrir tout le potentiel de cette propriété unique à Belœil.
Contactez-nous dès aujourd’hui pour obtenir plus d’informations ou pour planifier une visite du site. C’est l’occasion rêvée de concrétiser votre rêve.
A visiter sans tarder avec Oswald FENAUX au 0471/87.61.08. Honoraires agence à charge du vendeur. *1% HTVA soit 1,21% TVAC avec min. 2500€ HTVA soit 3025€ TVAC




















