{OPTION – En attente de signature de compromis}
PASIMMO AGENCE 1% vous présente cette agréable villa 4 façades située à Durnal, érigée sur un beau terrain de 12 ares 14 joliment arboré, avec double garage et panneaux solaires !
Découvrez la composition de cette habitation confortable offrant une vue imprenable sur le jardin et son étang :
** Rez-de-chaussée :
Un hall d’entrée dessert les différentes pièces de vie : un espace séjour lumineux, agrémenté d’un feu ouvert, une chambre de plain-pied, une salle de douche avec lavabo, un WC séparé, une cuisine super équipée, attenante au garage principal, et une véranda chauffée au poêle à pellets, orientée vers le jardin arboré pour une atmosphère de détente totale.
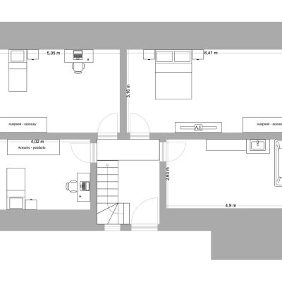
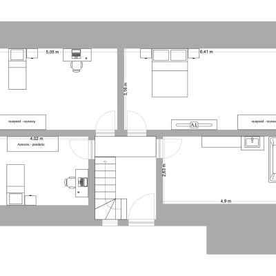
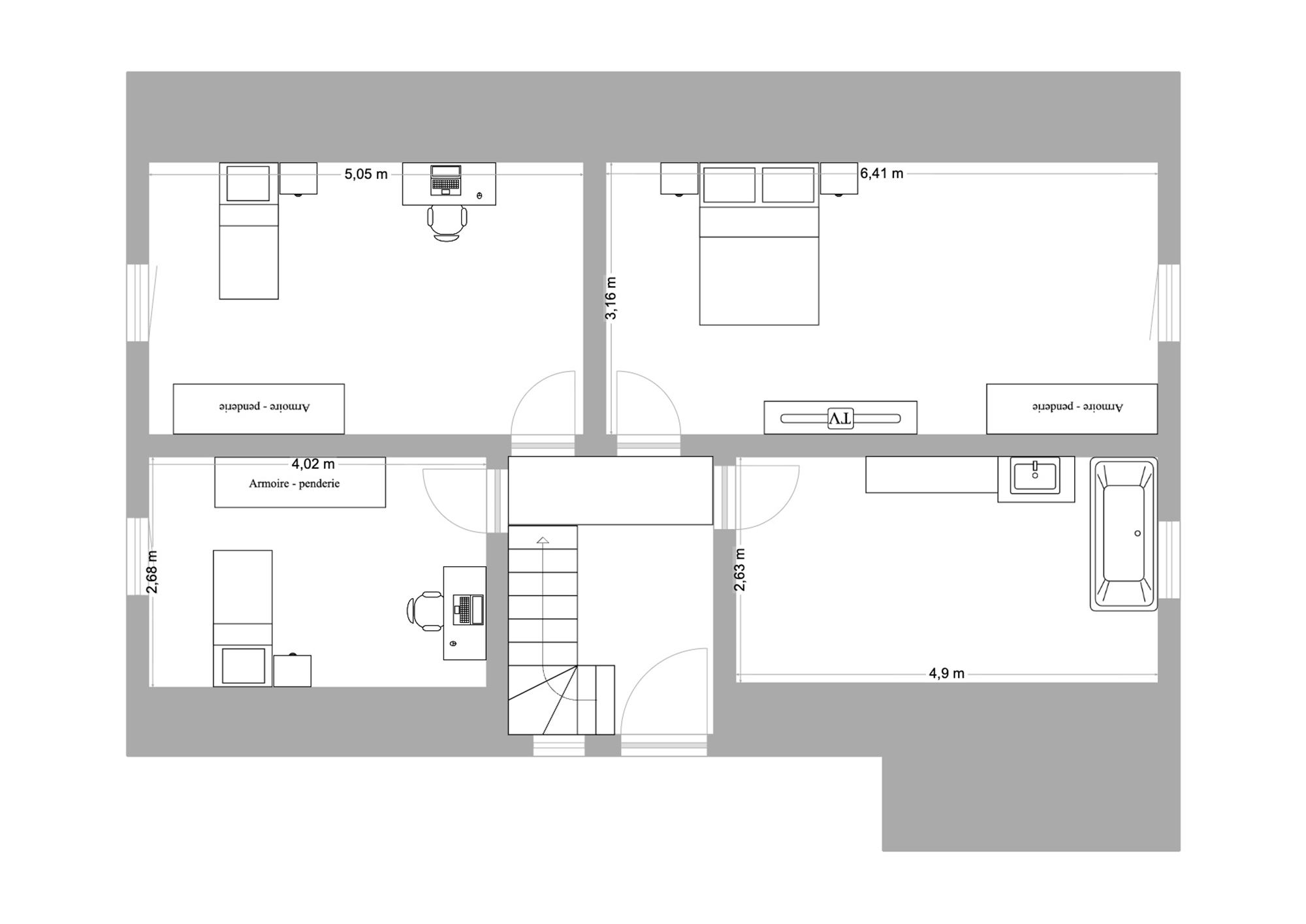
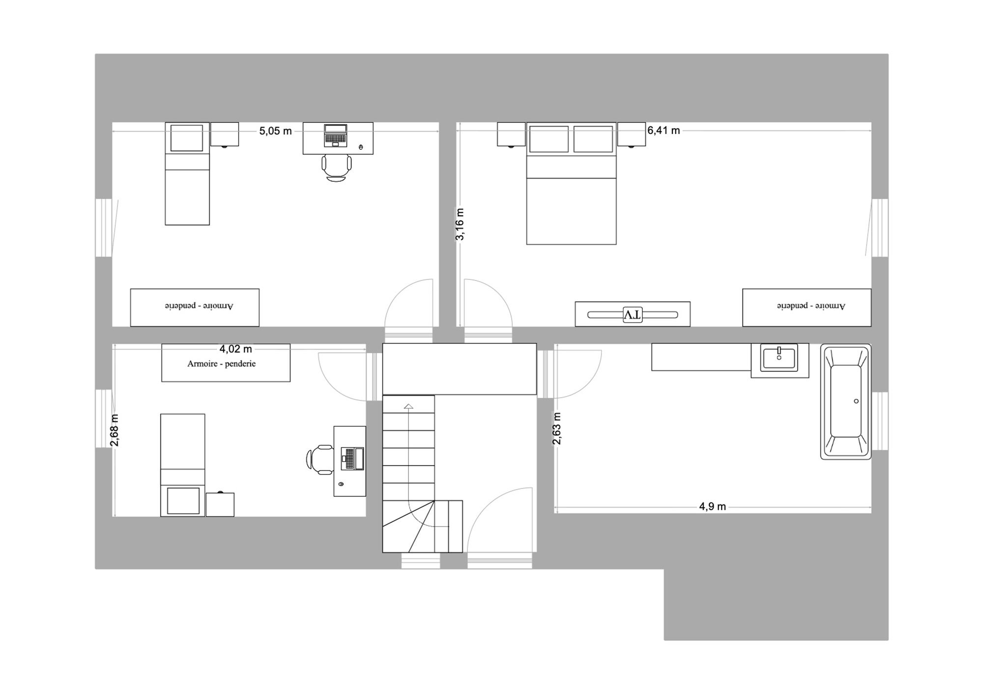
** Premier étage :
L’espace nuit se compose de : une chambre principale de 17,9 m², deux chambres secondaires confortables, et une vaste salle de bain de 13 m² avec baignoire, lavabo et second WC
_ Construction semi-récente de 1999
_ Châssis double vitrage
_ Chauffage électrique accompagné de 20 panneaux solaires installés en 2022
_ Poêle à pellets et insert au bois
_ Citerne d’eau de pluie de 3.000 L raccordée sur les WC et un robinet extérieur
_ Boiler thermodynamique pour l’eau chaude
_ Deux garages
À visiter sans tarder avec Loik Crabeck au 0491/91.59.63 _____ “Prix indicatif sous réserve d’acceptation des propriétaires” *Honoraires d’agence à charge du vendeur. * 1% HTVA soit 1,21´% TVAC avec un minimum de 2.500€ HTVA soit 3.025€ TVAC.

































