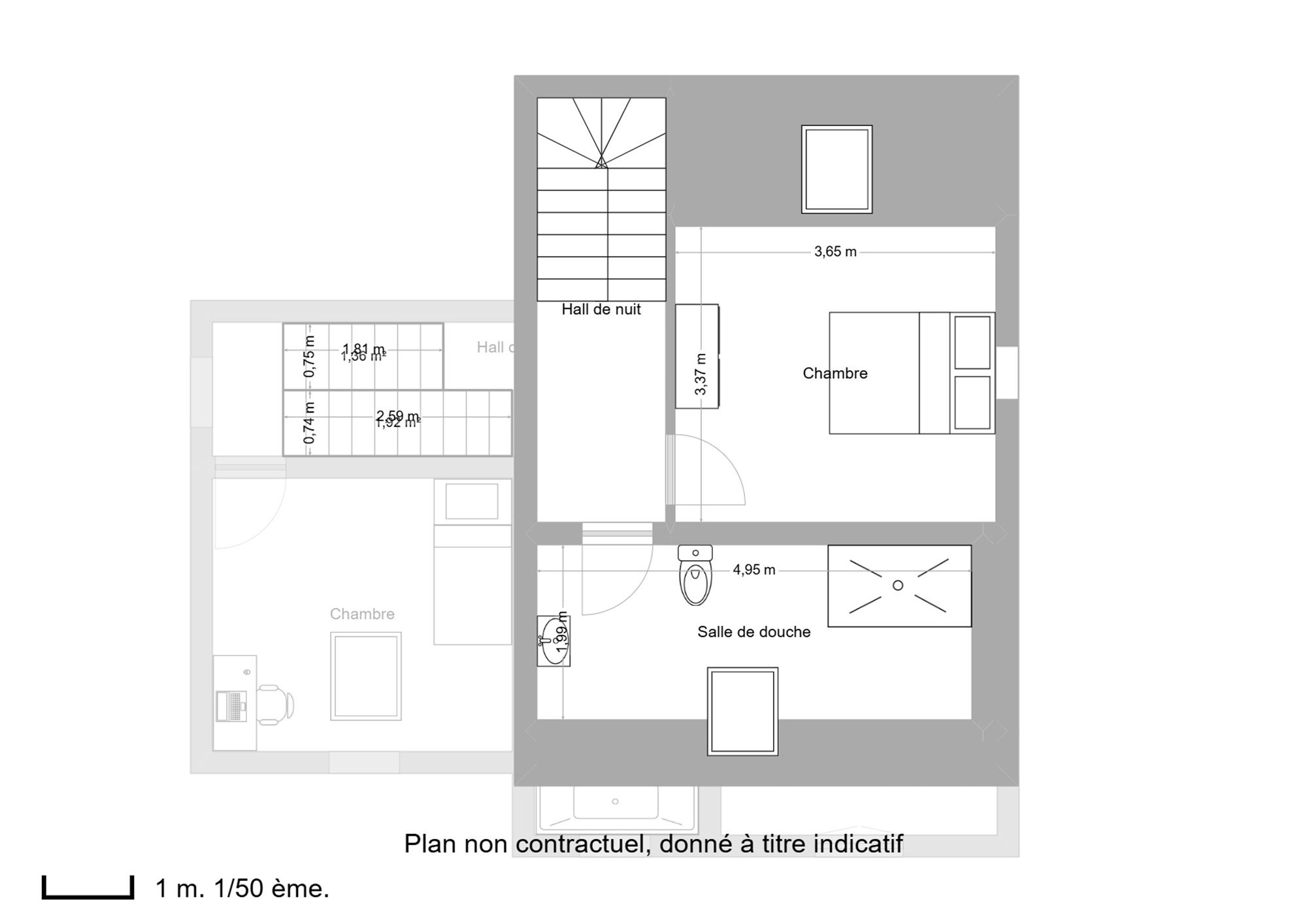
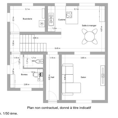
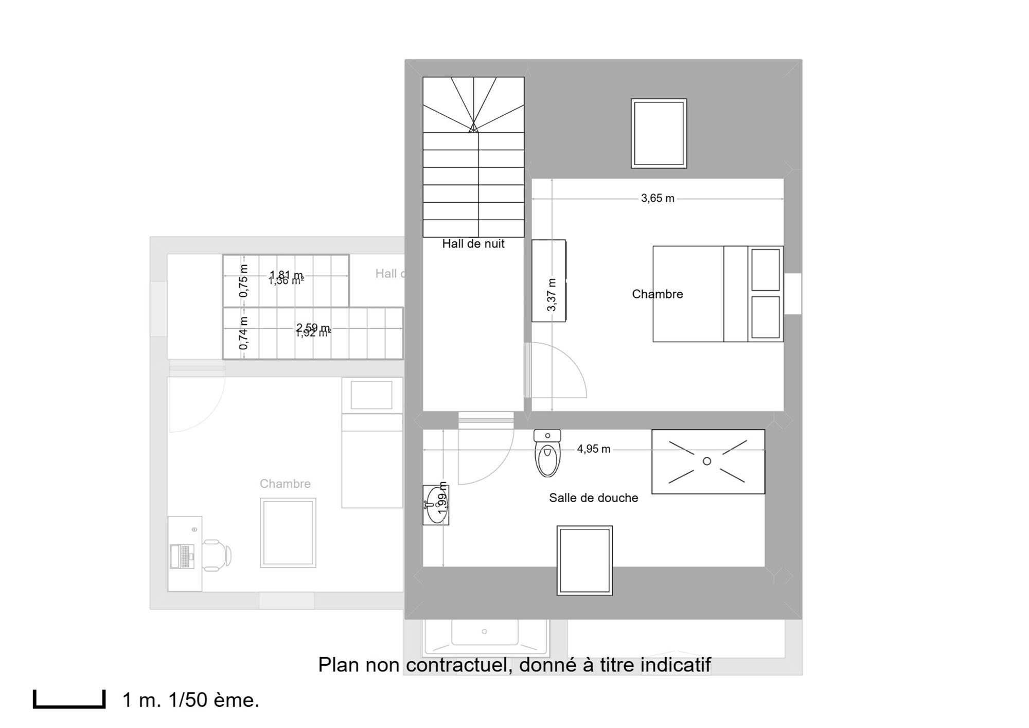
PASIMMO AGENCE 1 %* vous présente cette spacieuse maison 4 façades située à Pécrot, une rare opportunité qui combine confort et potentiel. Dotée de 4 belles chambres et 2 salles d’eau neuves (une salle de bain et une salle de douche), elle offre une capacité d’accueil idéale pour une famille.
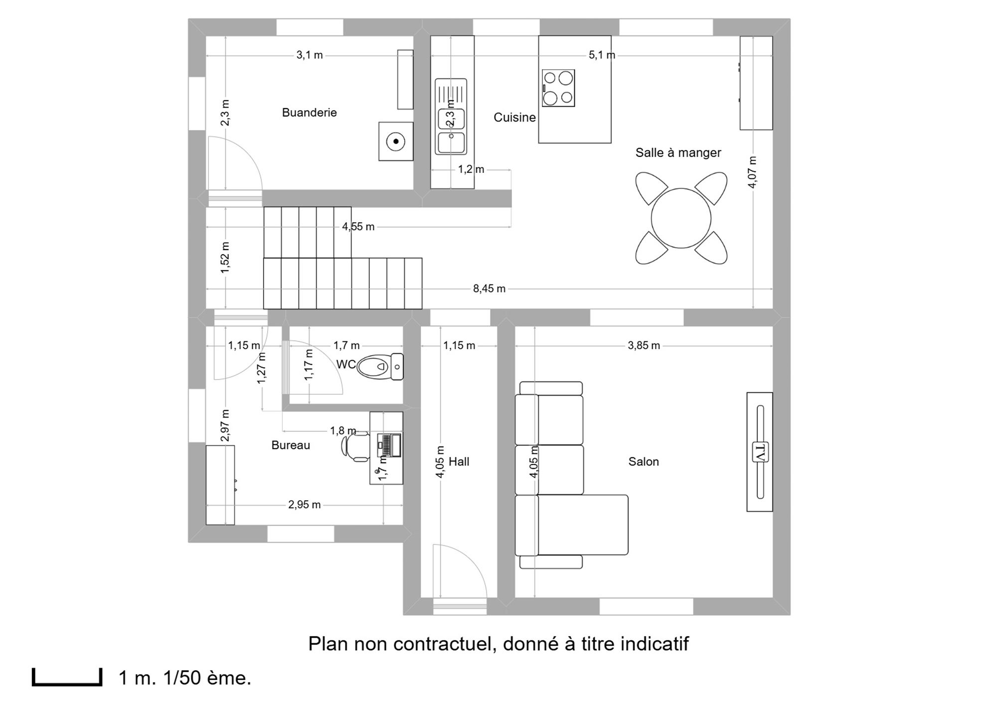
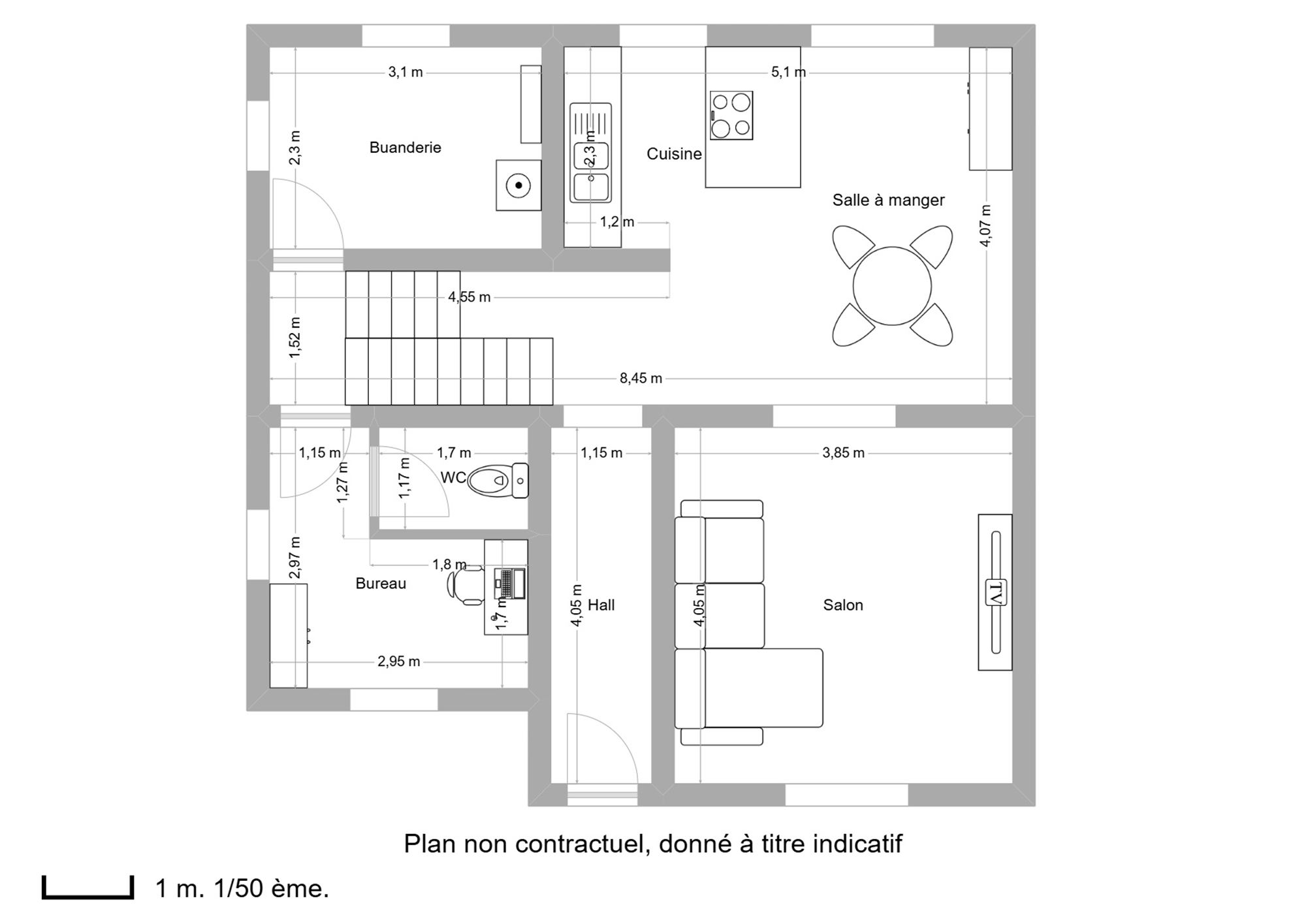
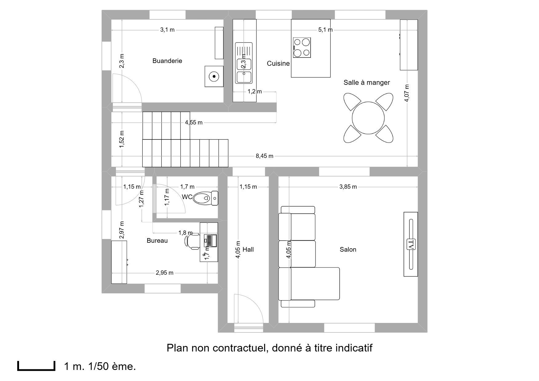
La cuisine ouverte et contemporaine, entièrement équipée, s’intègre parfaitement à l’espace de vie lumineux, procurant un cadre convivial pour les moments partagés.
Côté extérieur, vous profiterez d’un environnement verdoyant avec un beau jardin et une terrasse, idéalement orientés Ouest.
Pratique et fonctionnelle, la maison dispose également d’une buanderie, de caves, d’un garage et d’emplacements de parking en devanture.
Toutes les techniques ont été entièrement rénovées (chauffage, électricité, plomberie etc), les sols et les murs ont été refaits,… Elle n’attend plus que quelques finitions et vos projets pour ouvrir un nouveau chapitre.
Ne manquez pas cette opportunité unique et venez la visiter sans tarder avec Aurélie Smit au 0496/92.42.45. aurelie@pas-immo.be
Prix indicatif sous réserve d’acceptation du vendeur. Honoraires à charge du vendeur. 1 % HTVA soit 1,21 % TVAC avec min 2.500 € HTVA soit 3.025 € TVAC.




























