PASIMMO AGENCE 1 %* Découvrez cet élégant appartement d’environ 87 m² situé à Belgrade.
Situé en recul de la rue, il offre un cadre de vie au calme tout en étant proche de toutes les commodités.
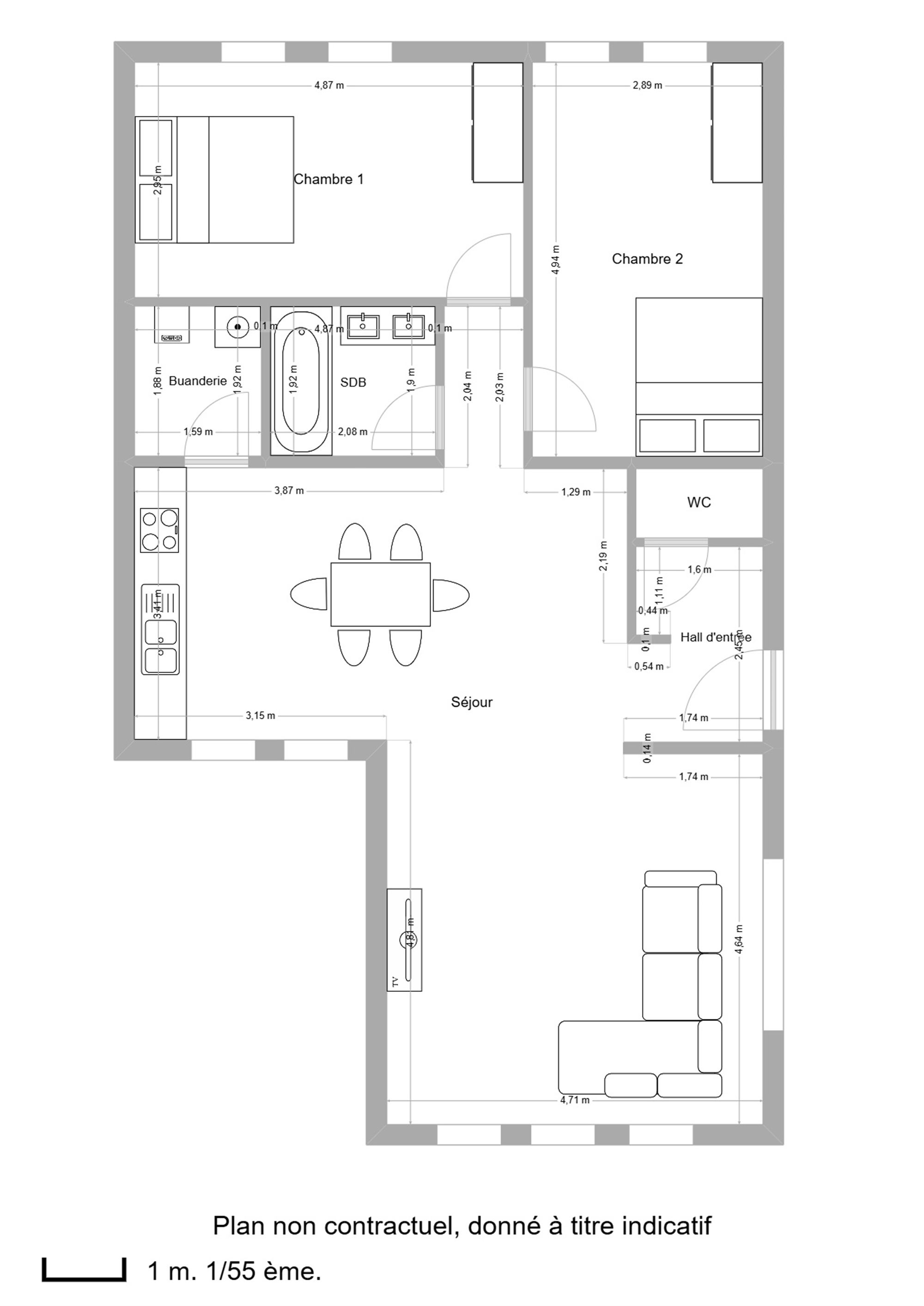
Il dispose de deux chambres spacieuses, d’une salle de bains moderne, d’une buanderie fonctionnelle et d’un hall d’entrée accueillant avec WC séparé. La pièce à vivre, baignée de lumière naturelle grâce aux grandes baies vitrées, propose un espace idéal pour la détente ou la réception. La cuisine ouverte s’intègre harmonieusement à ce séjour, créant un lieu de vie convivial.
La terrasse, véritable atout, offre une vue dégagée sur l’environnement verdoyant et une orientation Est pour profiter de la luminosité dès le matin.
Un espace dans un local de rangement et un emplacement de parking (à acquérir obligatoirement à 15.000 €) complètent ce bien.
Ne manquez pas cette chance de découvrir un appartement qui allie espace, confort et modernité dans un environnement idéal.
Prix indicatif sous réserve d’acceptation du vendeur. Honoraires à charge du vendeur. 1 % HTVA soit 1,21 % TVAC avec min 2.500 € HTVA soit 3.025 € TVAC.
