[VENDU – EN ATTENTE DE SIGNATURE DE COMPROMIS]
PASIMMO AGENCE 1% vous présente cette jolie maison bien entretenue avec garage et petit jardin à Marcinelle !
Découvrez la composition de cette maison offrant 110 m² habitables :
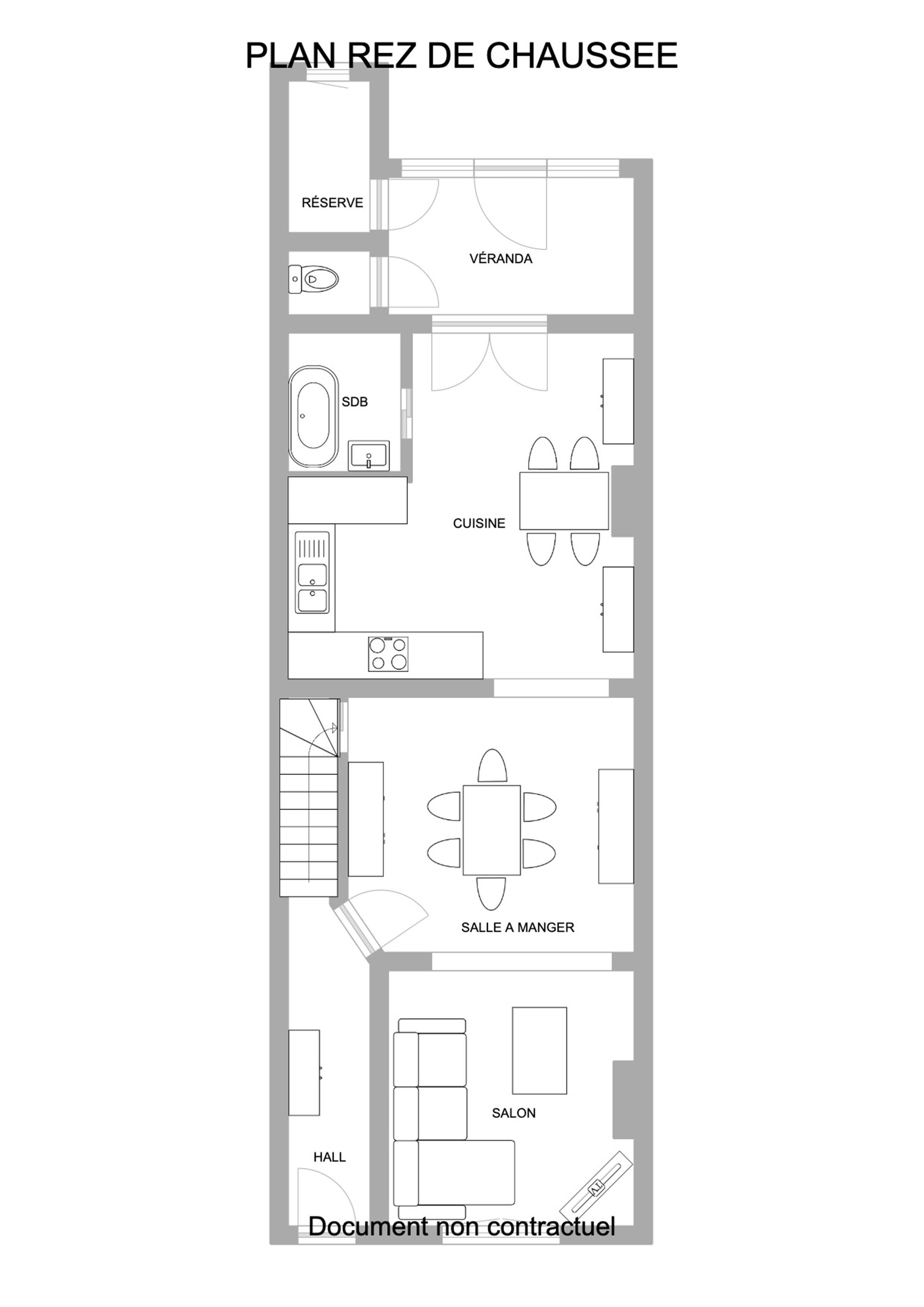
** Rez-de-chaussée : Un hall d’entrée accueillant vous mène vers un séjour lumineux de 26 m², composé d’un salon et d’une salle à manger avec une grande fenêtre à l’avant. Celui-ci s’ouvre sur une grande cuisine ouverte et équipée de près de 20 m², éclairée par une fenêtre de toit qui inonde l’espace de lumière naturelle. À l’arrière, on retrouve une salle de bains avec lavabo et baignoire, une véranda de 7 m² donnant accès à une toilette séparée, à l’emplacement pour lave-linge/sèche-linge et à un petit débarras.
** Premier étage : Un hall de nuit de 5,8 m² distribue deux chambres : une chambre principale de 16,4 m² et une seconde chambre de 11,3 m².
** Deuxième étage : Un grenier aménageable de 35,4 m², accessible via un escalier, idéal pour créer une troisième chambre, un bureau ou un espace polyvalent.
Les atouts :
_ Maison très bien entretenue ;
_ Electricité en conformité ;
_ Chauffage central au gaz naturel ;
_ Garage compris dans la vente (situé : 26+ Rue des Trois Fontaines) ;
_ Cave pratique pour le stockage ;
_ Grenier aménageable accessible par escalier ;
À visiter sans tarder avec Loik Crabeck au 0491/91.59.63 _____ “Prix indicatif sous réserve d’acceptation des propriétaires” *Honoraires d’agence à charge du vendeur. * 1% HTVA soit 1,21´% TVAC avec un minimum de 2.500€ HTVA soit 3.025€ TVAC.
